Близкий мэрии застройщик убедил город перезонировать его участок в центре Казани

Как выяснило «Реальное время», близкий казанской мэрии застройщик — компания «КамаСтройИнвест», участвуя в общественных обсуждениях проекта планировки территории в центре Казани, попросила доработать документ. В разрабатываемый ППТ в границах улиц Хади Такташа, Нурсултана Назарбаева и Марселя Салимжанова входит участок девелопера, где он планирует возвести многоквартирный жилой комплекс.
Однако сейчас, согласно ППТ, земля застройщика находится в зоне размещения существующих объектов нежилого назначения. Судя по карте, здесь небольшой пустырь и несколько гаражей. Поэтому компания предложила изменить зону участка в ППТ на зону размещения многоквартирной жилой застройки со встроенно-пристроенными объектами обслуживания. Городская комиссия сочла целесообразным учесть это предложение.
Проект ЖК от «КамаСтройИнвеста»
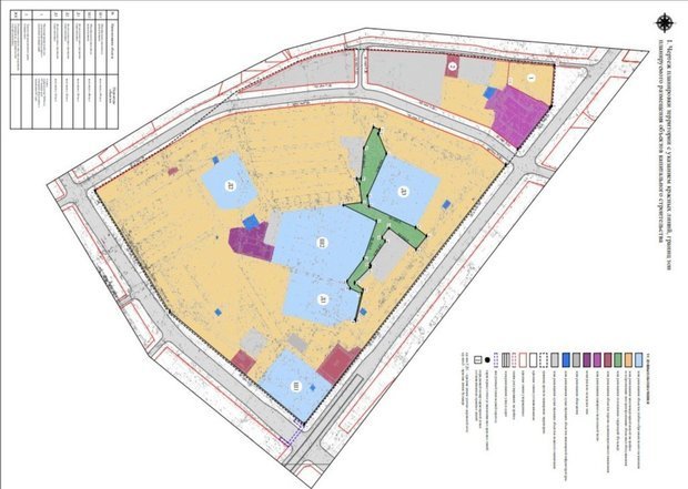
Многоквартирная четырехэтажка от КСИ займет участок площадью чуть более 4,6 тысячи кв. метров напротив известного ресторана «Пашмир». По соседству с ней на 900 «квадратах» планируют возвести торгово-административное здание, а также парковку на 107 машино-мест.
Появление очередного дома в центре города увеличит трафик и без того вечно загруженных дорог, поэтому проект планировки территории предусматривает строительство новой автодороги. Она должна соединить улицы Марселя Салимжанова и Хади Такташа, став продолжением ул. Туфана Миннуллина. Вместе с появлением дороги предполагается и возведение озелененного бульвара площадью 9,2 тысячи квадратных метров.

Общественные обсуждения по проекту планировки проходили с 16 ноября по 7 декабря прошлого года. Участие в них приняло и ООО «КамаСтройИнвест», которое потребовало доработки ППТ.
На участке должны построить многоэтажку и автостоянку
Компания «КамаСтройИнвест» планирует построить многоквартирный жилой дом с встроенной автостоянкой в стилобате. Здание должно занять площадь в 8 тысяч квадратных метров. Кроме того, еще 2,3 тысячи «квадратов» планируется отвести под коммерческие помещения.
— Просим вернуть проект планировки территории на доработку (корректировку) в связи с необходимостью учесть намерение ООО «КамаСтройИнвест» осуществить строительство многоквартирного жилого дома, — говорится в комментарии компании к общественным обсуждениям о строительстве четырехэтажки.
«Реальное время» запросило у «КамаСтройИнвеста» подробную информацию о планируемой стройке, но на момент публикации этого материала ответ от застройщика не поступил.

Общая площадь участка, на котором планируют строительство четырехэтажного жилого дома, равна 297,4 тысячи кв. метров. На нем располагаются три детских сада, две школы, пожарная часть, общежитие и другие многоквартирные дома, соответственно, новый ЖК будет обеспечен практически всей необходимой инфраструктурой.
К новому жилому комплексу будут примыкать пожарная часть №1 и сквер Хади Такташа. Рядом с местом строительства также находятся остановка общественного транспорта «Улица Марселя Салимжанова», Закабанная мечеть, торгово-офисный центр Suvar Plaza и набережная озера Кабан.

Для реализации проекта предполагается заменить несколько десятков водопроводных колодцев. Сети электроснабжения не подлежат модернизации. Однако к новому жилому комплексу собирались проложить дополнительную кабельную линию от местной трансформаторной подстанции. К ней же подключат торгово-административное здание.
