Генплан поселка под Казанью приняли с нарушениями норм и законов
Институт пространственного планирования РТ добивается проверки соблюдения закона органами МСУ Высокогорского района

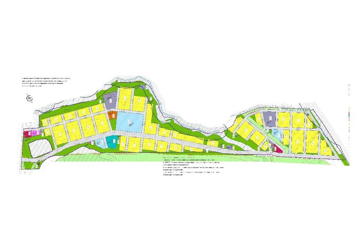
Госэкспертиза одобрила проект ЖК «Воздух» в поселке Березовка Высокогорского района под Казанью, ради которого местные чиновники поменяли генплан и правила землепользования и застройки, допустив многочисленные нарушения. Эти нарушения выявили специалисты Института пространственного планирования РТ. «Реальное время» выясняло, как ради нового микрорайона казанского «Замкадья» муниципальные чиновники «забыли» про отсутствие возможности обеспечить качественной водой даже существующие дома, «потеряли» санитарно-защитные зоны железной дороги и военных складов, а также провели публичные слушания «на троих».
Анализ показал
Жители и дачники поселка Березовка уже высказывали возмущение по поводу предстоящей вырубки прилегающего леса ради строительства очередного жилого комплекса. Сейчас их пугает и перспектива получить под боком не обеспеченные инфраструктурой многоэтажки с количеством жильцов, в несколько раз превышающим население поселка. Поэтому граждане обратились в ГБУ «Институт пространственного планирования РТ».

Из ведомства Олега Григорьева пришло заключение о соответствии нового генплана поселка и документов по его обоснованию законодательству о градостроительной деятельности, нормативным правовым актам в сфере градостроительства, Схеме территориального планирования РТ и региональным нормативам градостроительного проектирования. Однако в документе говорится более, чем о десятке нарушений и отклонений от нормативов при разработке и принятии нового генплана.
Самыми серьезными из них, на взгляд граждан, является отсутствие информации об источниках водоснабжения, пренебрежение санитарно-защитными зонами и, мягко говоря, формальное проведение публичных слушаний.

— Анализ Генерального плана поселка Березовка позволяет отметить ряд существенных несоблюдений требований градостроительного законодательства и проектирования, — сообщили заявителям в Институте пространственного планирования РТ. — Применены утратившие силу на момент разработки Генерального плана поселка Березовка нормативные документы <…>. В расчете обеспеченности объектами здравоохранения использованы нормативы согласно неактуальной на момент разработки Генерального плана <…> редакции Республиканских нормативов градостроительного проектирования, а расчет объектов культуры и спорта не соответствовал местным нормативам градостроительного проектирования Красносельского сельского поселения Высокогорского муниципального района.
Уплотнили и «сообразили на троих»
В новом генплане Березовки существенно «уплотнили» будущий многоквартирный жилой фонд — вопреки действующим нормам. Для расчета объема многоквартирного жилищного строительства был использован показатель плотности жилого фонда 9 433 кв. м на гектар при количестве этажей равным восьми и при массовом типе жилья, исходящем из норматива 30 кв. м на человека. Однако в актуальной редакции региональных норм он ниже — 8 826 кв. м на гектар.
Специалисты Института обнаружили в градостроительной документации весьма противоречивую информацию о сегодняшнем и прогнозном населении поселка. В тексте и таблицах материалов по обоснованию генплана «содержатся противоречивые сведения о прогнозной численности населения (950 и 1 300 на 2031 год, 1 280 и 2 030 на 2046 год)». При этом на начало 2022 года в Березовка уже проживало 795 человек, а с учетом того, что только в ЖК «Воздух», который планируется построить на месте леса, предполагается сдать более 900 квартир, а генпланом предполагается еще и отвести 392 земельных участка под индивидуальную жилую застройку, только «прибыль» населения по отношению к имеющемуся может превысить 2 200 человек.

В институте также обратили внимание на некорректное проведение публичных слушаний по рассмотрению Генерального плана Березовки:
— На официальном сайте Высокогорского муниципального района не обнаружены извещения о назначении публичных слушаний <…>, в частности извещение о публичных слушаниях <…>, а также материалы, связанные с проведением публичных слушаний 11.10 2022 года. Из представленных [Высокогорским исполкомом] документов следует, что на публичных слушаниях, проведенных в 10:00 во вторник 11 октября 2022 года около дома №2 по улице Дорожной поселка Березовка, присутствовало всего 5 человек, причем председательствующий и секретарь публичных слушаний являлись представителями Исполнительного комитета Красносельского сельского поселения.
Действительно, в размещенном на официальном сайте Высокогорского муниципального района заключении о результатах публичных слушаний по проекту Генерального плана п. Березовка, входящего в состав муниципального образования «Красносельское сельское поселение Высокогорского муниципального района Республики Татарстан», датированном 14 октября 2022 года говорится, что на них присутствовало 5 человек, из которых трое — члены оргкомитета — руководитель исполкома Красносельского поселения Ренат Нуруллин, ведущий специалист исполкома Фаниль Шарапов и начальник отдела строительства, архитектуры и ЖКХ Высокогорского муниципального района Артур Хуснутдинов. Как указано в заключении, «в процессе проведения публичных слушаний подготовлен протокол проведения публичных слушаний по проекту Генерального плана п. Березовка, входящего в состав муниципального образования «Красносельское сельское поселение Высокогорского муниципального района Республики Татарстан», однако протокол этот не обнародован, информация о высказанных жителями замечаниях и предложениях участников слушаний также не опубликована.
— Выходит, — рассуждает местная жительница Назиля С., — если исключить заинтересованных лиц, то изменения в генплан вопреки нашим интересам в реальности согласовывали всего два человека из всех, кто тут проживает, а еще трое участников слушаний — сотрудники исполкома Красносельского поселения и Высокогорского исполкома. Ничего себе «сообразили на троих»! А мы и не знали ничего, и никаких объявлений не видели. Да и видели бы — не все бы смогли прийти, потому что публичные слушания провели 11 октября 2022 года — это был рабочий день, вторник, когда, кроме пенсионеров да женщин-декретниц, никто и прийти-то не может!
Ни скважин, ни санитарных зон
Особое внимание при подготовке заключения по генплану Березовки специалисты Института пространственного планирования РТ обратили на вопросы, связанные с водоснабжением. И неудивительно — в дома в Березовке вода много лет поступала с большими перебоями, а сейчас в кранах она хоть и есть, но неудовлетворительного качества.

— Запланированное на расчетный срок общее водопотребление согласно генеральному плану должно составить не менее 525,77 куб. м/сутки, при этом в настоящее время поселок не обеспечен источниками водопотребления, — говорится в заключении. — В Генеральном плане поселка планируемые источники водоснабжения не указаны. Объем стоков от планируемой застройки должен составить более 355,25 куб. м/сутки, места приема сточных вод в генеральном плане не указаны. На сегодняшний день документов, подтверждающих наличие месторождений пресных подземных вод питьевого качества и технической возможности от ресурсоснабжающей организации о возможности приема канализационных стоков, не имеется.
В ответе из Института пространственного планирования местным жителям процитирована информация, полученная специалистами из Казанской межрайонной природоохранной прокуратуры — о том, что в границах земельного участка, «прирезанного» к Березовке в результате изменения генплана под строительство нового ЖК, «расположено девять скважин, предоставленных в пользование АО «Казанский оптико-механический завод» на основании лицензии, однако «в связи с досрочным прекращением лицензии <…> предписано в срок до 01.09.2023 <…> осуществить ликвидацию скважин».
— Институтом при разработке Мастер-плана Казанской агломерации была запрошена информация о поясах защитной санитарной охраны источников подземного водоснабжения, — указано в заключении. — Согласно полученным данным, первый пояс зоны санитарной охраны источника водоснабжения на рассматриваемом земельном участке отсутствует <…> На Карте зон с особыми условиями использования территории [генплана Березовки] в I поясах зон санитарной охраны источников водоснабжения находятся склад и станция технического обслуживания дорожной техники. В соответствии с СанПиН, <…> в пределах I пояса не допускаются все виды строительства, не имеющие непосредственного отношения к эксплуатации, реконструкции и расширению. водопроводных сооружений.

Дополнительно в Институте пространственного планирования РТ уведомили жителей Березовки, что согласно Генеральному плану поселка территория будущего ЖК «попадает в санитарный разрыв линий железнодорожного транспорта, а в Правилах землепользования и застройки 2023 года этот санитарный разрыв отсутствует. И напомнили, что по нормам «железнодорожные пути следует отделять от жилой застройки городов и поселков санитарно-защитной зоной шириной 100 м, считая от красной линии до оси крайнего пути». Кроме того, специалисты института не обнаружили на генплане Березовки «материальные склады, расположенные на востоке населенного пункта с ориентировочной санитарно-защитной зоной 50 метров» — вполне живое «наследие» воинской части, располагавшейся ранее в поселке.
Проверить надо, но нельзя?
Глава Института пространственного развития Олег Григорьев сообщил жителям Березовки, что намерен инициировать проведение внеплановой проверки соблюдения органами местного самоуправления Высокогорского муниципального района Республики Татарстан законодательства о градостроительной деятельности в отношении Красносельского сельского поселения. «Реальное время» обратилось в институт с запросом относительно проверки и ее результатов — по получении ответ будет опубликован.

Также «Реальное время» запросило информацию о проверке в республиканском Минстрое, однако там заявили о ее невозможности:
— Постановлением Правительства Российской Федерации от 10 марта 2022 года №336 «Об особенностях организации и осуществления государственного контроля (надзора), муниципального контроля» до 2030 года установлен мораторий на проведение плановых проверок при осуществлении государственного контроля за деятельностью органов местного самоуправления.
«Все было сделано должным образом»

Руководитель исполкома в разговоре с «Реальным временем» буквально опроверг подготовленное с его участием заключение по итогам публичных слушаний — заявил, что на общественных слушаниях было не пять указанных в документе граждан, а «много людей». Он добавил, что основная масса этих людей, поднявших шум вокруг принятия нового генплана, не относится к числу жителей Березовки, а в абсолютном большинстве является «оппозиционно настроенными экоактивистами, не имеющими отношения даже к Высокой Горе и жителями поселка Кульсеитово», либо членами окрестных СНТ, не относящихся к поселку, генплан которого обсуждался.

Ренат Нуруллин добавил, что сейчас вопросом генплана Березовки «занимаются соответствующие структуры», но не уточнил, какие именно. «Реальное время» поинтересовалось у главы Красносельского исполкома, какова в настоящий момент ситуация с водой в поселке и как, по его информации, будет решаться вопрос о снабжении населения качественной питьевой водой после застройки.
— Разработчики проекта изначально нам сказали, что начнут с того, что будут бурить скважины, — ответил Ренат Нуруллин. — По республиканской программе «Чистая вода» у нас в этом году завершается четвертый этап работы. Трубопроводы в поселке полностью поменяли, дома, которые питались водой от воинской части, давно подключены к общей системе. Но качества воды там нет. И этот вопрос прорабатывается. В рамках этой программы мы подготовили письмо от района в том числе, чтобы рассмотрели вопрос бурения другой скважины.
Наше издание также обратилось в администрацию Высокогорского района, но комментариев по поводу принятия генплана с нарушениями муниципальные власти не дали.
«Показать свою принципиальность было бы хорошо для реноме Минстроя»

Дембич убежден, что в возникшую ситуацию сейчас необходимо вмешаться, и госорганы в силах и должны это сделать, несмотря на мораторий на плановые проверки. Ведь именно с целью не допускать таких нарушений был создан Институт пространственного планирования РТ. Он свою часть работы выполнил — выдал качественное заключение, а теперь очередь республиканского Минстроя:
— Министерство не имеет права проводить плановые проверки, но в данном случае, требуется, я полагаю, внеплановая проверка. И отменять принятые градостроительные документы должен, думаю, Минстрой — через суд. Вправе это сделать и администрация района, но ее-то все устраивает. Может быть, необходимо к раису республики обратиться, чтобы это было сделано? Очень важно, чтобы Минстрой на примере этого проекта показал свою принципиальность и сделал это публично. Это было бы очень хорошо для их реноме.