«ЮИТ» увековечит имя финского композитора на земле «Ак Барса»
Иностранный девелопер приобрел 6,8 га на окраине Казани под застройку жильем экономкласса
Финская строительная компания «ЮИТ Казань» объявила о покупке 6,8 гектара территории «Молодежный» — амбициозного проекта казанской мэрии на 5 599 квартир, расположенного на 72 гектарах. Как выяснила газета «Реальное время», финны будут строить рядом с москвичами из «Евромет Девелопмент» (ЖК «Лето») — их общие социальные объекты расположатся на земле, купленной у Алексея Семина. Общий портфель инвестиций «ЮИТа» в три проекта с учетом нового, таким образом, составит 7 млрд рублей.
Где-то на берегах Ноксы
«ЮИТ Казань» — «дочка» финского строительного концерна «ЮИТ» — объявила о покупке земельного участка в Советском районе Казани. Речь идет об участке площадью 6,8 гектара, расположенном на территории планировки «Молодежный». Последний был утвержден постановлением исполкома Казани еще в прошлом году.
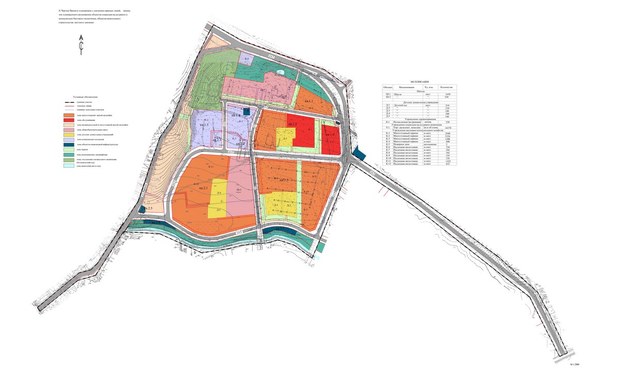
«Молодежный» расположен в границах территории ботанического сада Казанского федерального университета (с северной стороны), жилого массива Константиновка и территории микрорайона «Светлая долина» (с восточной стороны), реки Нокса и жилого массива Малые Клыки (с южной стороны), улицы Зирекле и переулка Дорожный (с западной стороны). Здесь планируется строительство нескольких сотен тысяч квадратных метров жилья и всей необходимой инфраструктуры.
В проекте «ЮИТ Казань» помимо жилья предусмотрено строительство отдельно стоящего паркинга и наземных парковочных мест, а также благоустройство территории и развитие инфраструктуры. Общий объем инвестиций в проект, по предварительной оценке, превысит 2 млрд рублей. «ЮИТ Казань» планирует начать освоение участка уже в следующем, 2016 году.
В дешевый сегмент
По словам гендиректора компании Владимира Сорокина, в настоящее время проект находится на стадии разработки, в связи с чем «ЮИТ» пока не готова озвучить информацию по планам застройки и периоду реализации. Однако известно уже, что новый жилой комплекс будет отличаться от двух других, которые финны строят в Казани в Ново-Савиновском и Советском районах. Как объяснил «Реальному времени» Сорокин, формат будет другой «в связи с его локацией и, соответственно, другой целевой аудиторией».
По сути, «ЮИТ» признает, что идет в сегмент дешевого жилья. Напомним, что «Современник» и по позиционированию, и по стоимости скорее можно отнести к бизнес-классу.
Пока проект не имеет названия, но не исключено, что он будет назван в честь финского композитора Яна Сибелиуса и его произведений. По словам гендиректора «ЮИТ Казань», «в этом году во всем мире отмечается 150-летие великого композитора, и мы, как финская компания, не можем оставить без внимания эту знаменательную дату».

«ЮИТ» пока не готова озвучить информацию по планам застройки и периоду реализации. Однако известно, что новый жилой комплекс будет отличаться от тех, что финны строят в Ново-Савиновском и Советском районах, отметил Владимир Сорокин.
Проект «Молодежный»: 5 599 квартир, 72 гектара, 11 700 человек
Напомним, параметры всего проекта стали известны в июле прошлого года на слушаниях с мэром Казани Ильсуром Метшиным. Так, известно, что площадь территории «Молодежного» составляет 72 гектара (таким образом, «ЮИТ Казань» будет застраивать всего десятую часть). Планируется, что «Молодежный» даст Казани 351,2 тыс. кв. м общей площади. Жилищная обеспеченность — 30 кв. м на человека. Население «Молодежного» — 11,7 тыс. человек. Предполагается, что на территории будут созданы объекты инфраструктуры: две школы на 2,2 тыс. мест, 4 детсада на 970 мест. Будут построены торгово-развлекательный комплекс, четыре многоуровневых паркинга, семь наземных стоянок, взрослая и детская поликлиники и так далее.
По данным проектной документации, выложенной на сайте казанской мэрии, это строительство должно дать в итоге 5 599 квартир. Там же можно оценить границы и схему всего проекта:
Финны будут строить рядом с москвичами — общие социальные объекты расположатся на земле, купленной у Алексея Семина
Территория изначально была разделена между тремя компаниями: «Евромет Девелопмент», «АС Менеджмент» (группа ASG) и «Ак Барс Капитал». Первым застройщиком «Молодежного», анонсировавшим свой проект летом прошлого года, стали москвичи — компания УК «Евромет Девелопмент». Инвестируя в свой проект ЖК «Лето» 12-16 млрд рублей, компания была намерена строить как на своем участке (в «Молодежном» ей принадлежит 25,5 гектара через собственную проектную компанию ООО «Лидер Плюс»), так и на участке, принадлежащем УК «АС Менеджмент» (группа ASG): о решении передать участки для ЖК «Лето» в компании Алексея Семина объявили в ноябре прошлого года (взамен они должны получить квартиры). Всего будет семь очередей застройки, на каждую очередь отдается 24-36 месяцев. Инвестиционный цикл реализации проекта — 5-6 лет. Большую его часть планируется сдать до 2020 года. Компания собирается вывести на рынок квартиры небольшой площади, разного формата, «для молодежи». ЖК «Лето» станет самым крупным «внутри проекта» «Молодежного» — его площадь составит 234,1 кв. м, в том числе торгово-развлекательный центр на 16,3 тыс. кв. м, несколько паркингов на 8 тыс. машино-мест, школа, детсады и другие объекты инфраструктуры.
В отделе продаж ЖК «Лето», расположенном в БЦ «Булак», корреспонденту «Реального времени» признались, что строительство по объекту «еще не началось, начнется в июле». Цену квартир обещают объявить ближе к началу строительства. Интересно, что в настоящий момент разрешение на строительство пока даже не получено.
Кроме того, сотрудники отдела продаж подтвердили информацию о покупке «ЮИТом» примерно 1/8 части земли по соседству: с ЖК «Лето» у финнов будет общий микрорайон, но что там (по проекту «ЮИТ Казань» — прим. ред.) будет, пока неизвестно. Общими с ЖК «Лето» станут и социальные объекты. При этом сами соцобъекты никак не уменьшат территорию жилищной застройки, так как строиться будут на территории, купленной у ASG.
Продавец не желает афишировать факт сделки
Корреспондент «Реального времени» обратился к представителям компании ASG с запросом, не расстались ли те со своим участком в пользу финнов. Они опровергли.
Редакция попыталась выяснить, не третий землевладелец ли «Молодежного» — «Ак Барс Капитал» — стал продавцом.
Попытка получить комментарий у «Ак Барс Капитал» не увенчалась успехом. Получив запрос от газеты, ее представители так и не вышли на связь. «АК БАРС Банк» (АКБ считается аффилированной структурой) в ответ на запрос газеты «Реальное время» заявил, что земельный участок, проданный «ЮИТу», «не принадлежит «Ак Барс Капитал» и не имеет к нему никакого отношения». Тем не менее источники «Реального времени» на рынке утверждают, что купленная финнами земля принадлежала именно структурам «Ак Барса».
Как «Ак Барс» полгода перебрасывал земли от владельца к владельцу
Мы сделали официальный запрос в Федеральную службу госрегистрации, кадастра и картографии и получили убедительное подтверждение, что финнам участок продали все-таки именно структуры «АК БАРС Банка».
Правда, что любопытно, сама управляющая компания «Ак Барс Капитал», даже судя по выпискам из документов ФСГКК, старается минимизировать какое-либо участие в сделках и во всяком случае не выступать предпоследним владельцем (который и окажется по записям продавцом). Всего финнам было продано четыре участка. Один участок площадью 14,9 тыс. кв. м компанией «ЮИТ Казань» был приобретен в декабре у некоего закрытого ПИФ «Фостер» — под управлением… именно УК «Ак Барс Капитал». В цепочке владельцев — а участок как мячик перебрасывался с июля прошлого года от одного юридического лица к другому — фигурируют ООО «Романов и компания» и ООО «ДЗ-Сервис» (100%-ный владелец — Зайнуллин Ильнур Разифович). Второй участок (15,4 тыс. кв. м) «ЮИТом» был приобретен тоже 26 декабря у знакомой нам «Романов и компания» (второй в цепочке владельцев первого участка), которому, в свою очередь, земля перешла от того же ПИФа «Фостер», управляемого ООО УК «Ак Барс Капитал». Второй участок также был в «поле владения» «Ак Барса» с 27 августа (дата приобретения у «ДЗ-Сервис») до 26 декабря. Сравнительно небольшой участок 5,8 тыс. кв. м был строительной компанией «ЮИТ» приобретен напрямую у ПИФа, находящегося в управлении структур «АК БАРС Банка» (в цепочке владельцев с июля прошлого года те же имена и названия: «Романов и компания» и «ДЗ-Сервис»). По четвертому участку (почти 30 тыс. кв. м) информации о предыдущем владельце нет. Всего компания «ЮИТ» выкупила четыре участка общей площадью 65,7 тыс. кв. м. Его кадастровая стоимость — 472,489 млн рублей. Участники рынка оценивают стоимость подобного участка в районе 300-400 млн рублей.
Интересно, что фигурирующая в цепочках владельцев участков, проданных «ЮИТу», компания ООО «Романов и Компания» занимается предоставлением посреднических услуг, связанных с недвижимым имуществом (директор — Ольга Бойко), и принадлежит ЗАО «Инвестпроект». Что любопытно, директор «Инвестпроекта» Инна Сурай в то же время является руководителем ООО «Альянс» (принадлежит также ЗАО «Инвестпроект»). По случайному совпадению существовал закрытый ПИФ недвижимости «Инвестпроект» (минимальная сумма для инвесторов — 45 млн рублей), который управлялся столичным ЗАО «Альянс Капитал» и был ликвидирован в 2010 году.
Общий портфель инвестиций «ЮИТа» в три проекта с учетом нового составит 7 млрд рублей
Напомним, что на сегодняшний день компания «ЮИТ Казань» реализует в столице Татарстана два проекта: масштабный жилой комплекс «Современник» в Ново-Савиновском районе и ЖК «Гармония» по ул. Магистральная в Советском районе. Оба проекта предполагают вывести на рынок квартиры класса «комфорт» (110 квартир даст «Гармония» и 803 квартиры — проект «Современник»). Заявленные инвестиции в проект «Гармония» должны составить 569 млн рублей, он стартовал в прошлом году, финиш предполагается в третьем квартале 2016 года. Самый крупный проект, который ведет «ЮИТ Казань» в настоящее время — «Современник» — со 2 по 7 очереди. Здесь компания инвестируют 4,5 млрд рублей: проект стартовал еще в 2008 году, сдача квартир предполагается к концу этого года. По размеру инвестиций эти два проекта «ЮИТ Казань», напомним, делают компанию одной из крупнейших на казанском рынке. Если учесть и инвестиции в новый проект, общий портфель по трем проектам компании составит ориентировочно 7 млрд рублей.
Общая жилая площадь квартир, которые компания построит по двум своим проектам — до анонсированного проекта на территории «Молодежный», — составляла 48,29 тыс. кв. м. Любопытно заметить, что до сих пор «ЮИТ» предпочитал строиться, что называется, «свободно»: «Гармония» (вторая очередь) располагается на 39,6 гектарах, «Современник» — на 55 гектарах. Именно судя по площади застраиваемого участка можно предполагать, что это будет небольшой жилой комплекс, следовательно, и затраченные на него инвестиции окажутся не такими высокими, как по другим проектам «ЮИТа», можно надеяться и на то, что срок строительства окажется небольшим.
Как «ЮИТ» поссорился с казанской мэрией из-за требований к социальной инфраструктуре
И не будет тех проблем, которые у компании были в прошлом. Любопытно в этой связи вспомнить недавнюю историю финнов в Казани. Как известно, концерн «ЮИТ» — крупная европейская компания, имеет 100-летний опыт работы, в Финляндии это крупнейший застройщик жилья, в России — крупнейшая иностранная компания в области жилищного строительства с региональными подразделениями в Москве, Петербурге, Екатеринбурге, Ростове и Казани (см. справку). Казанская «дочка» концерна — «ЮИТ Казань» — вышла на казанский рынок до Универсиады, в 2006 году, а сам концерн заработал репутацию благодаря Тысячелетию Казани, приняв участие в строительстве и реконструкции таких объектов, как президентский дворец в Казанском кремле, Дворец спорта, Казанская ратуша. Благодаря поддержке властей, «ЮИТ» не стал выходить на рынок РТ через покупку местной строительной компании, как он делал в других российских регионах, а создал филиал с нуля.
Однако впоследствии, как после перемен в руководстве «дочки» — новый генеральный директор Владимир Сорокин пришел в марте 2012 году, — так и после перемен в градостроительной политике казанского исполкома после прихода Азата Нигматзянова (первый замруководителя исполкома Казани по градостроительной политике), отношения с властями начали портиться, что привело к срывам сроков строительства первого проекта «ЮИТ Казань» — ЖК «Современник». В сентябре 2012 года менеджменту финской компании пришлось встречаться с дольщиками. Финны объясняли срыв сроков новыми требованиями казанского исполкома к социальной инфраструктуре (в частности, числу мест в детском саду и парковкам), которых не было в изначально подписанных договорах, и, следовательно, попытка «достроить» инфраструктуру могла сильно ударить как по инвестиционному плану всего проекта, так и по рентабельности. В казанской мэрии обвиняли во всем «ЮИТ», объясняя, что застройщик должен думать не только о деньгах, но и о «социальной ответственности бизнеса». «ЮИТ Казань» внезапные перемены в правилах игры не одобрил и даже подавал иски к казанскому исполкому о признании незаконным непродления разрешения на строительство — мэрия, разумеется, любит пользоваться подобными рычагами с «непослушными застройщиками».
Финны нашли общий язык с «татарами»
Судя, однако, по сегодняшнему участию финнов в амбициозной застройке проекта «Молодежный» отношения «ЮИТа» с исполкомом наладились. Что касается обеспеченности мест в детских садах, то по заявленным проектам «Гармония» и «Современник» предполагаются детские сады на 50 и 140 мест соответственно (неизвестно, впрочем, увеличила в результате компания число мест или исполком пошел на уступки). Аналогичная ситуация и по парковкам: в «Современнике» планируется строительство паркингов на 936 машино-мест (на 803 квартиры), параметры парковок на более новый проект застройщика «Гармония» пока не заявлены. Интересно также отметить, что «паркинги, а также благоустройство территории и развитие инфраструктуры» упоминаются и в объявлении компании о покупке земельного участка на территории «Молодежного». Очевидно, что новые договоры о строительстве наверняка включают и новые требования к социнфраструктуре. Так или иначе, участие «ЮИТ Казань» в крупнейшем казанском проекте говорит о том, что финны с «татарами» нашли общий «строительный» язык.
«Основной тормоз строительства — вода и канализация»
Андрей Генсен — директор департамента развития территорий инвестиционной группы компаний ASG:
— В отличие от участков под точечную застройку, земельные массивы для квартальной жилой застройки (комплексного освоения территории) включают в себя внутренние проезды, дороги, землю под строительство социальных объектов. Естественно, данный факт отражается на стоимости земли, это своего рода оптовая покупка. Кроме того, комплексное освоение территории реализуется на других принципах, подходах, там совершенно другая экономика по сравнению с точечной застройкой. Как правило, требуются большие инвестиции в инженерную и транспортную инфраструктуру, строительство социальных объектов. Ориентируясь на сделки в данном сегменте, можно сказать, что стоимость земли под квартальную застройку на 50-70% ниже стоимости участков под точечное строительство, примерно на уровне 4 000- 5 000 руб. за 1 кв. м площади.
Реализация подобных проектов — это серьезные вложения, особенно на первых этапах строительства. И сейчас в практику нашей компании входит иной подход к реализации земли в проектах комплексного освоения территории. Диалог с застройщиком строится не по принципу «продавец-покупатель», а на основе партнерских отношений, соинвестирования. То есть мы входим в проект землей и получаем процент от построенных площадей. Для застройщика это возможность расширить границы проекта, не затрачивая существенных средств на приобретение земли.
Рустем Юнусов — директор компании «Фарус»:
— Участок выставляли на продажу по стоимости примерно 400 млн рублей. Конечная цена, за которую участок в итоге приобрели, зависит от многих факторов. В принципе, место для жилищного строительства неплохое. С экологической точки зрения очень привлекательно. Все будет зависеть от того, как будут проведены туда инженерные сети и дороги. Так как в Казани не много места для строительства жилых комплексов, этот район имеет хорошие перспективы.
6,8 га — это по большому счету не так уж и много. В первую очередь нужно будет вложиться в сети и инфраструктуру. Без сетей нет смысла начинать строительство. То же касается и ЖК «Лето», который планируют построить рядом. Основной тормоз строительства — это, по моему мнению, вода и канализация. Там их практически нет. При массовой застройке территории, куда будет отводиться канализация и проводиться водоснабжение, до сих пор непонятно. На самом деле, на данный момент нет ни проектов, ни даже понимания того, что там будет строиться, как будет решаться проблема с сетями. Очень много подводных камней, прогнозировать сейчас тяжело.
Александр Дембич — завкафедрой градостроительства и планирования сельских населенных мест КГАСУ:
— Жилье в этом районе будет не очень дорогим, поэтому люди туда поедут. Не знаю, как сейчас там дела обстоят с инженерными сетями, но когда «Кулон» осваивал «Светлую долину», они туда сети подтянули. Что касается того, хватит ли мощности их сетей, чтобы принять нагрузки еще с семи гектаров земли, то 6,8 га — это довольно много. Думаю, что там построят примерно 100-120 тыс. кв. м нового жилья. Для таких размеров необходимы инженерные сети, чтобы было можно провести воду, свет, канализацию. Я не очень уверен, что эти инженерные сети там есть.
То, что ЖК «Лето» до сих пор не запустили, может быть напрямую связано с инженерными сетями, точнее с их отсутствием. Эти территории стоят и не застраиваются именно потому, что есть проблемы с сетями. Инвесторы, даже если они крупные, как правило, не тянут сети в одиночку. Для этого необходимо либо создавать пул инвесторов, либо город должен принять участие в этом деле.
Фото: reportal.ru, dvkvartak.ru, skyscrapercity.com, Роман Хасаев
Справка
Концерн «ЮИТ» ― крупная европейская компания, новатор строительной отрасли, который создает благоприятную городскую среду в Финляндии, России, странах Балтии, Чехии и Словакии. «ЮИТ» строит жилье и коммерческие помещения, создает инфраструктуру, осуществляет комплексное развитие территорий. Концерн «ЮИТ» имеет более чем 100-летний опыт работы и сильные позиции на рынке: в Финляндии концерн является крупнейшим застройщиком жилья и одним из лидеров по возведению объектов коммерческой недвижимости и инфраструктуры, а в России — крупнейшей иностранной компанией в области жилищного строительства. В России концерн начал свою деятельность в 1961 году и на текущий момент представлен своими региональными подразделениями в Москве, Московской области, Санкт-Петербурге, Екатеринбурге, Ростове-на-Дону и Казани.
«ЮИТ» обеспечивает работой более 6 000 человек в семи странах. В 2014 году торговый оборот компании составил около 1,8 млрд евро. Акции ЮИТ котируются на хельсинкской бирже NASDAQOMX.
«ЮИТ Казань» — дочерняя компания финского строительного концерна «ЮИТ», который вышел на казанский рынок в качестве застройщика в 2006 году. На сегодняшний день в активе компании подрядные работы по реконструкции таких важных для города культурных объектов, как Казанский кремль, Казанская ратуша и Дворец спорта, а также работы по благоустройству территории около центра семьи «Казан». В данный момент «ЮИТ» реализует в Казани масштабный проект по строительству жилого комплекса «Современник», который по окончании строительства будет состоять из 11 домов, трех многоуровневых паркингов и детского сада. Также в 2014 году началось строительство еще одного комплекса 3 ЖК «Гармония».